
该地标位处吉阳区新风街市政府中心旁蓝海华庭城市综合体内,属于大三亚湾总部经济及中央商务核心功能区。目前对外出租的楼层7/10/12/13/13A/15 (简装)及16/17/18/20/21 (毛坯) ,多种办公户型,可自由组合、灵活分割, - -线高端硬件配置,高效助力办公体验。项目除写字楼外,还有5层商业及2栋住宅,以多维商务空间匹配企业办公需求。
- .写字楼经济技术指标
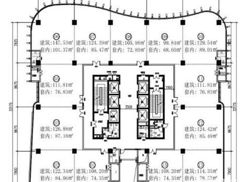
(1 )地上总楼层数:23层
(2 )标准层面积: 1535.26mf
(3 )标准层高:4.1米
(4 )使用率: 68.7%
(5 )走廊宽度: 1.8米
(6)停车位数量:约1180个
(7 )停车费:包月220元/辆/月(以物业实际公告为准)
(8 )物业管理费用: 8.5元/平/月
(9)水费:水费: 5.82元/吨;电费: 0.6957元/度(收费根据市政调整以物业实际公告为准)
二、周边配套:
(1)金融配套:中国工商银行、中国民生银行、中国银行、三亚农商银行、兴业银行等;
( 2 )商务配套:悦信:美高美国际酒店、中亚国际大酒店、全季酒店等;
(3 )政务配套:三亚市政府、三亚市政务服务中心、三亚住房公积金管理局等;
(4)商业配套:蓝海购物广场、金润阳光、三亚明珠广场、商品街等;
(5)人文配套:临春河公园
三、交通枢纽:
地标位于新风街与河东路交叉口,沿河东路开车前往动车站约20分、机场约30分,多路公交车直达,交通+分便利. .
四、房屋配套
(1 )中空Low-E全玻璃荨堵
外观与材质采用造价更高、更加安全、更加节能的中空Low-E全玻璃荨堵,不仅能享受都市中心全景视野,亦通过减少光热
辐射兼得节能环保优势,有效隔绝外部噪音、室内无死角采光。
(2 )简装户型有整套架空网格地板
布线灵活方便以及重新布线和修改方便,容易安装施工,操作空间大,能容纳电缆数量多、美观、隐蔽性好。
(3 )多联机低碳节能空调
更加节能环保,运行费用低,控制先进,安装和计费方式灵活方便,设计自由度高。
(4 )高效助力商务人流垂直运行
5部高配备蒂森克虏伯客梯和1部货梯,高梯速可达3.5米/秒,荷载1350kg ,高效运行。
(5 )高配比停车位
配备地下三层车库,车位约1180个,节约停车时间,高效便捷。
扫一扫,享受优质选址服务