
[四海中心] 1. 项目负- -层地铁4号线、8号线无缝对接,双地铁物业,区域的影响力、辐射能力进一步提升; 2. 项目自身配套10.2万方大型商
业,吃喝玩乐- -体化; 3. 楼板采用无梁板设计结构,层高3.8米,净层高3.4米,空间感受更加出色; 4. 大堂11.6米超高挑空,面积750平米,营
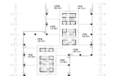
造非凡的商务气度; 5、面积区间110-433 ,灵活可选择性多,满足各类型企业的不同面积需求; 6.单层标准层面积2817.65平米,同层办公,企
业内部各部门间的沟通效率大大提升; 7. 13部国际一线品牌芬兰通力电梯,其中2部总裁电梯,为办公人员高效出行提供便利; 8、物业五大行直
管,提供专业的日常服务: 9.地辐热市政供暖,办公更加舒适,同时降低企业成本; 10. 项目已挂牌末央区双创咖啡街,正在申请国家4A级景区
和文化创意产业园。
扫一扫,享受优质选址服务